Не упусти свой шанс! Последние акции от застройщиков  ▼

Продается 3-комнатная квартира, Летниковская ул., 9

62 000 000 Р

Летниковская ул.9

Дата публикации: 4 марта 2026

Дата обновления: 14 марта 2026

Телефон: 
Показать телефон

+7 (499) 372-92-13

Агентство:  МИЭЛЬ

От застройщика: 0 квартир в продаже

Этаж: 12 / 24

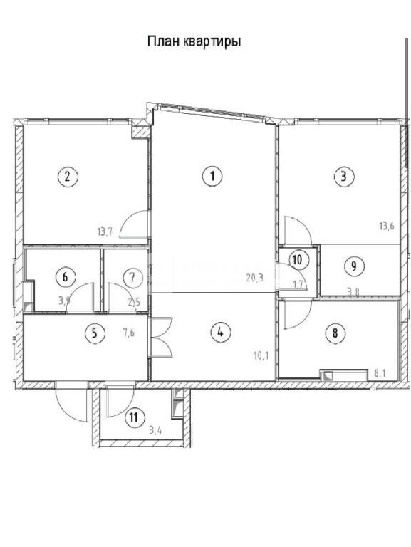
Общая: 89,3 м2

Жилая: 65 м2

Кухня: 15 м2

Комнаты: не указано

Балкон/лоджия: не указано

Лифт: есть лифт

Окна: окна во двор

Санузел: совмещенный

Мусоропровод: не указано

Состояние квартиры: требуется ремонт

Тип дома: монолитный

Год постройки: 2025

Территория: не указано

Парковка: не указано

Статус сделки: продажа

Сделка: прямая продажа

Собственность: не указано

Основание права собственности: не указано

Описание

Код объекта: 2063449.В собственности. Вайт- бокс. Ключи на руках.Уникальное предложение на рынке недвижимости Москвы просторная трёхкомнатная квартира в монолитном доме в жк " ХАЙ ЛАЙФ" на Летниковской улице, 11к1 башня корпус 2. Квартира расположена на 12-м этаже 24-этажного дома. Общая площадь квартиры составляет 89,3 кв. м, . Высота потолков 3 метра, что создаёт ощущение простора и свободы. Окна выходят во двор. В квартире два совмещённых санузла, что удобно для большой семьи. Квартира продаётся с отделкой White-box, Покупателю в подарок проект от премиального дизайн бюро " Balcon" , который позволит новым владельцам воплотить свои дизайнерские идеи без дополнительных затрат на черновую отделку.Дом оборудован подземной парковкой, а территория вокруг дома огорожена, что обеспечит безопасность и комфорт жильцам.У собственника индивидуальный ключ для входа на территорию комплекса, подъем на этаж также по индивидуальному ключу.Не упустите возможность стать владельцем просторной и светлой квартиры в одном из самых перспективных районов Москвы. Звоните нам прямо сейчас, чтобы узнать больше и записаться на просмотр.В ДКП полная стоимость, один взрослый собственник, без маткапитала, без обременений.Мы гарантируем безопасную сделку и юридическую поддержку нашим Клиентам. Поможем одобрить ипотеку с сниженной ставкой.

Квартира на карте

ПанорамыКарта
Спецпредложения
Добавить объявление